Please enable JS

CELESTIA

Wood & Metal Series

CELESTIA

IMPACT

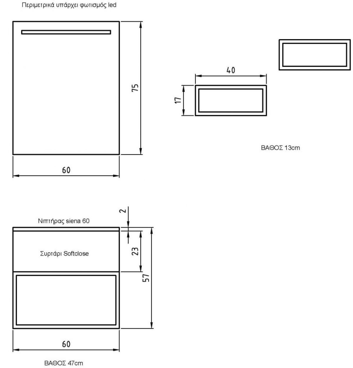
Base 60x55x47
Sandblasted Mirror 60x75 with a hidden LED light
Countertop Marine Plywood Formica F605
Wash Basin Siena 60

Colour: Celestia / MDF lack white matt


TECHNICAL DETAILS

CODE: 1202

CATEGORIES: ΕΠΙΠΛΑ ΜΠΑΝΙΟΥ |


PHOTO GALLERY