Please enable JS

AZURE

Wood & Metal Series

AZURE

IMPACT

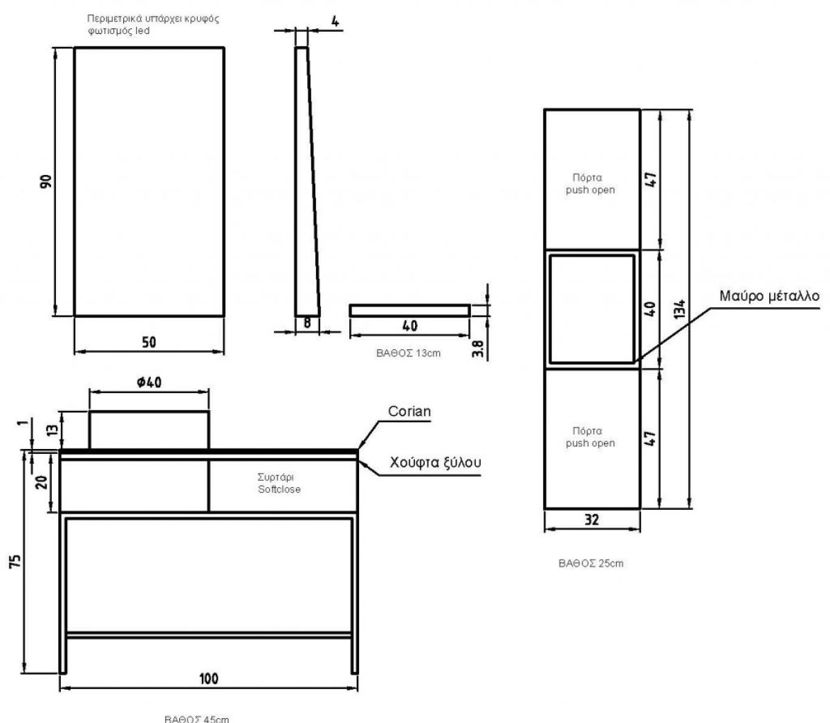
Base 100x73x45
Mirror 50x90 with a hidden LED light
Cabinet 134x32x25
Corinan Countertop
Wash Basin Comfort F40

Colour: Marine Playwood Formica F602


TECHNICAL DETAILS

CODE: 1203

CATEGORIES: ΕΠΙΠΛΑ ΜΠΑΝΙΟΥ |


PHOTO GALLERY